



![]() |
3x 2x
£365,000 Freehold College Avenue,
Gillingham, ME7 |
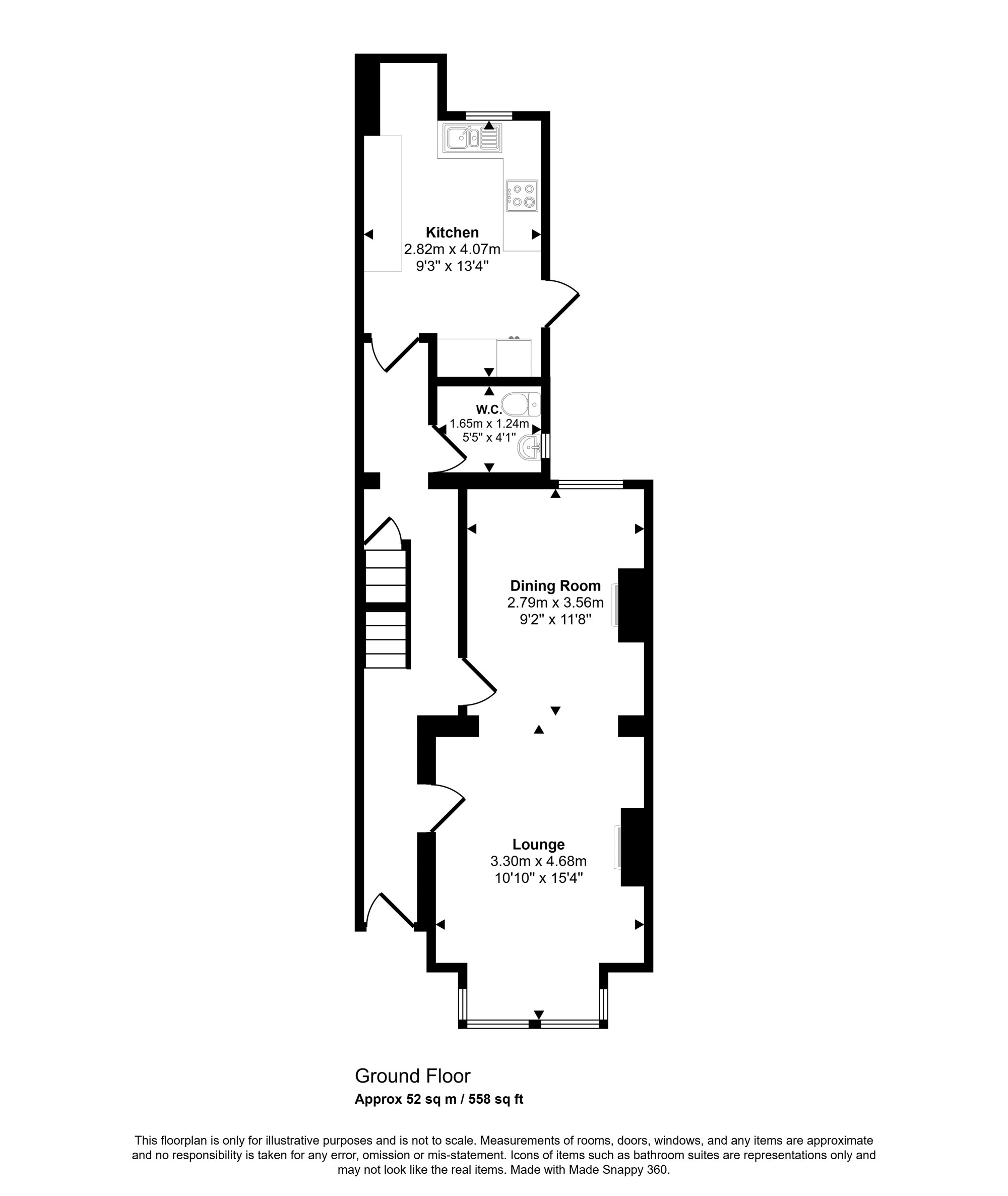
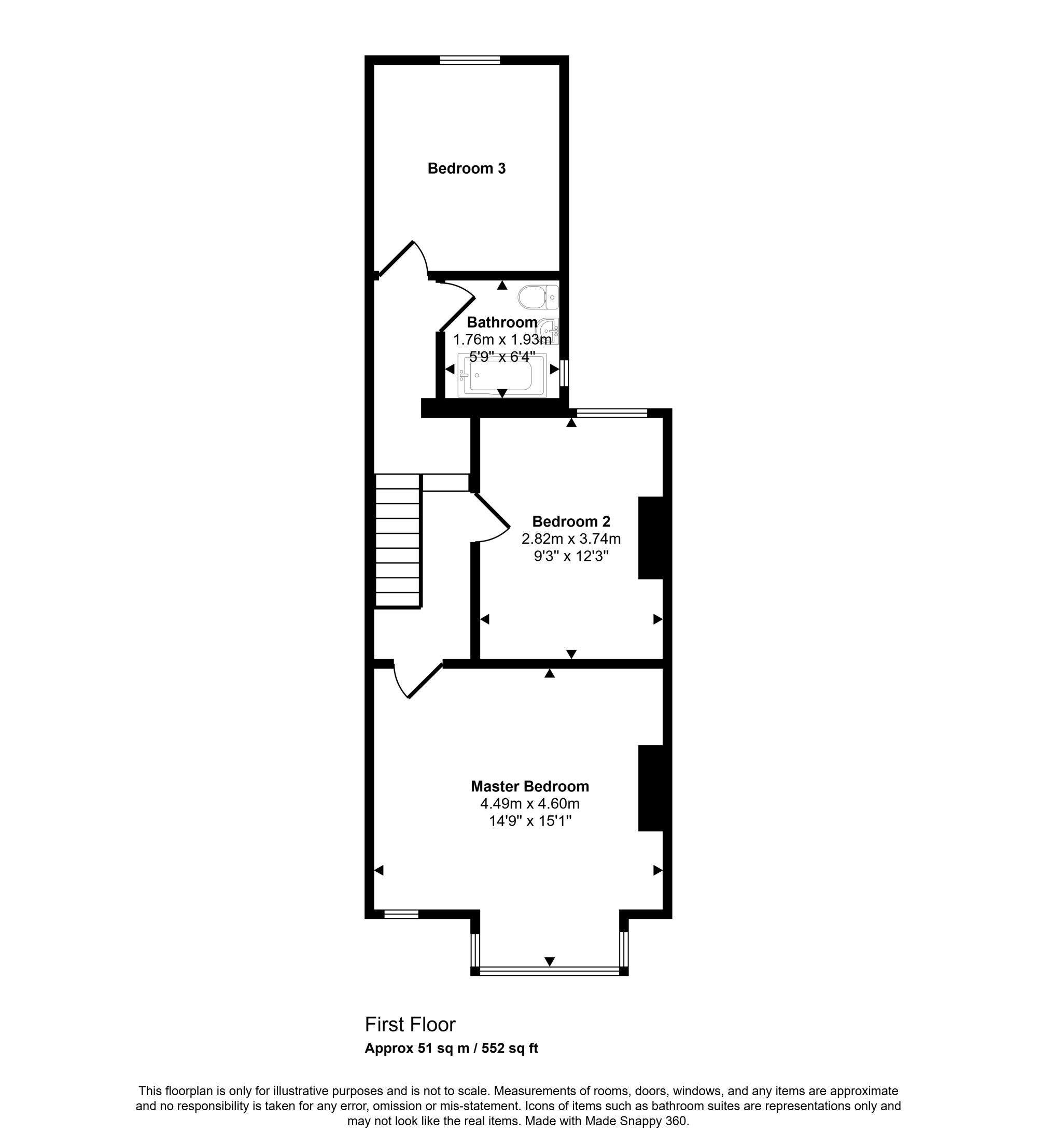
Welcome to your new home on College Avenue, Gillingham! This stunning 3-bedroom, 2-bathroom end of terrace house is a rare find, offering a spacious and comfortable living experience. Boasting a large open plan lounge/diner, a generously sized Kitchen, Downstairs WC and a cellar. This property has lots of space and is perfect for entertaining guests or creating a warm family atmosphere. Situated in a prime location, you'll have convenient access to nearby amenities, shops, and the hospital, making everyday life effortless.
With off-road parking and a garage, you'll never have to worry about finding a space for your vehicle. The property's great size throughout ensures that every member of the family has their own space to relax and unwind.
Moreover, the property is within walking distance of Gillingham's bus stops and railway station, making commuting a breeze.
Surrounded by an array of amenities including hospitals, pharmacies, parks, and entertainment venues, this property provides an exceptional opportunity to own your next home in Gillingham. Don't miss out on this incredible chance to make this house your new home!
Under the Property Misdescription Act 1991 we endeavour to make our sales details accurate and reliable but they should not be relied upon as statements or representations of fact and they do not constitute any part of an offer of contract. The seller does not make any representations to give any warranty in relation to the property and we have no authority to do so on behalf of the seller. Services, fittings and equipment referred to in the sales details have not been tested (unless otherwise stated) and no warranty can be given as to their condition. We strongly recommend that all the information which we provide about the property is verified by yourself or your advisers.
Under the Estate Agency Act 1991 you will be required to give us financial information in order to verify you financial position before we can recommend any offer to the vendor.
Shops and amenities nearby, OPEN PLAN LOUNGE/DINER, GARAGE AND DRIVEWAY, Garage and off road parking





